Поможем найти офис в аренду!
Снять офис
Москва, Орджоникидзе д.11 с.11

Бизнес-центр "Око (Фаза II)"

  • Помещение 799.8 м2 Бизнес-центр Око (Фаза II) – фото объекта
Помещение 799.8 м2 Бизнес-центр Око (Фаза II) – фото объекта
799.8 м2
Адрес: Москва, Пресненская набережная, 16Б
Тип недвижимости: Бизнес-центр
Формат объекта: Москва-Сити
Округ: ЦАО
Метро: Международная (3 минуты пешком)
Деловой центр (5 минут пешком)
Выставочная (5 минут пешком)
Класс объекта: B+
Тип помещения: Офисное
Наличие мебели: Без мебели
ПАРКОВКА
Подземная:
да
коэф. 1/10025 000 руб.
Наземная:
да
коэф. 1/10023 000 руб.
Городская:
да
Платная200 руб. в час
В аренду предлагается офисный блок, площадью 799, 8 м2 на 7 этаже бизнес-центра класса "В+". Помещение смешанной планировки, под отделку. Коммерческие условия: 25 000 руб. м2 в год, без НДС. Дополнительно оплачиваются эксплуатационные расходы (6 000 руб. м2 в год) и коммунальные платежи (по факту потребления). БЦ оборудован всеми современными инженерно-техническими коммуникациями для комфортной работы и отдыха арендатора. На территории имеется наземный и подземный паркинг. В пешей доступности станции метро "Международная" и "Деловой центр", а также ТТК и ТРК "Афимолл".
Площадь, м2 Этаж Стоимость, м2/год Стоимость в месяц
799.8 7 25 000 руб. 1 666 250 руб.


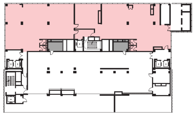
План помещения

Помещение 799.8 м2
Налоги Состояние Тип
НДС оплачивается отдельно Под отделку Офисное

Организовать просмотр

Я даю согласие на обработку моих персональных данных в соответствии с Условиями

Другие помещения в данном бизнес-центре

Площадь: 111 м2

  • Этаж: 1
  • Тип помещения:
  • Состояние:
  • Наличие мебели:
  • Стоимость: 30000 руб. за м2 в год

Площадь: 799.8 м2

  • Этаж: 3
  • Тип помещения: Офисное
  • Состояние: Под отделку
  • Наличие мебели: Без мебели
  • Стоимость: 25000 руб. за м2 в год

Площадь: 799.8 м2

  • Этаж: 4
  • Тип помещения: Офисное
  • Состояние: Под отделку
  • Наличие мебели: Без мебели
  • Стоимость: 25000 руб. за м2 в год